
CE 2003
CE 2003Project informationPERIOD
2025TYPE
RESIDENTIAL, VILLALOCATION
CORAL ESTATE - CURACAOSIZE
237m2STATUS
IN PROGRESS
CE 2003 is carefully designed to follow the natural slope of the terrain, allowing the villa to nestle effortlessly into its lush surroundings. With soft neutral tones, wooden accents and a spacious overhanging roof, the architecture feels both grounded and open. Large openings frame the Caribbean Sea, while indoor and outdoor areas flow seamlessly into each other. Every detail is focused on creating a calm, refined atmosphere that embraces the landscape and invites slow living.






CELEBRATING CALM AND CONNECTION
Nestled in the lush hills of Coral Estate, CE 2003 is a serene retreat where architecture flows effortlessly with the landscape. Designed to embrace the natural slope, the villa unfolds into open living spaces that connect seamlessly with shaded terraces and a tranquil infinity pool overlooking the sea.
The floating roof, supported by elegant white columns, creates a sense of lightness while providing shelter and structure. Soft natural tones and warm wooden accents bring harmony to the design, allowing the indoors and outdoors to blend into one calming environment. This home is more than a place to stay, it is a peaceful hideaway shaped by nature, offering a quiet luxury in the heart of the Caribbean.

Used materials
Only theessential
Contrasting colors and materials brought together, to create an exclusive villa concept. Natural materials such as concrete tiles and wooden planks combined with black and white stucco blend in flawlessly creating a unique concept for the Caribbean.
The large windows and doors add to the spaciousness of the main indoor and outdoor living areas, opening up the villa to enjoy the beautiful views.




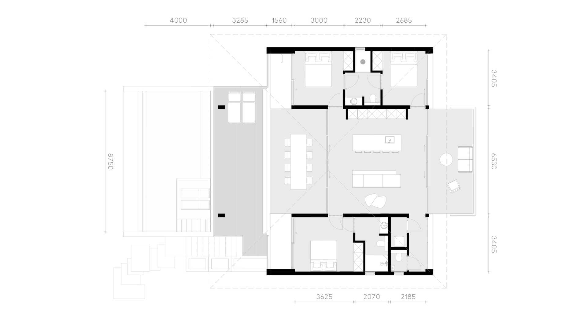
Floor plan
The floor plan reveals a carefully composed layout that emphasizes open living. With the kitchen, dining and lounge area placed centrally, the surrounding bedrooms and outdoor terraces benefit from both privacy and connection. The result is a spatial arrangement that flows naturally, perfectly suited to the Caribbean lifestyle.

GET IN TOUCH
WITH US
GET IN TOUCH WITH US
We love to collaborate with
ambitious clients. Let’s connect
hello@stateofarchitecture.com









