
Horizon
House
Horizon House
Project informationPERIOD
2022-2025TYPE
RESIDENTIAL, VILLALOCATION
CORAL ESTATE - CURACAOSIZE
1200m2STATUS
IN PROGRESS
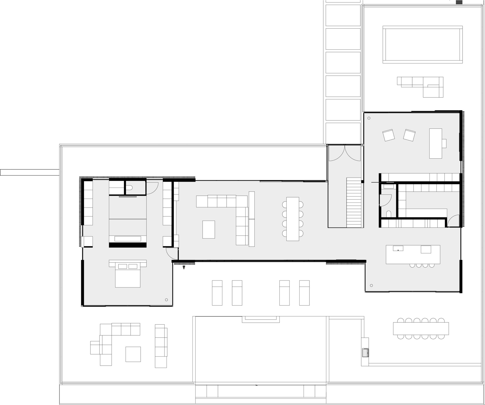
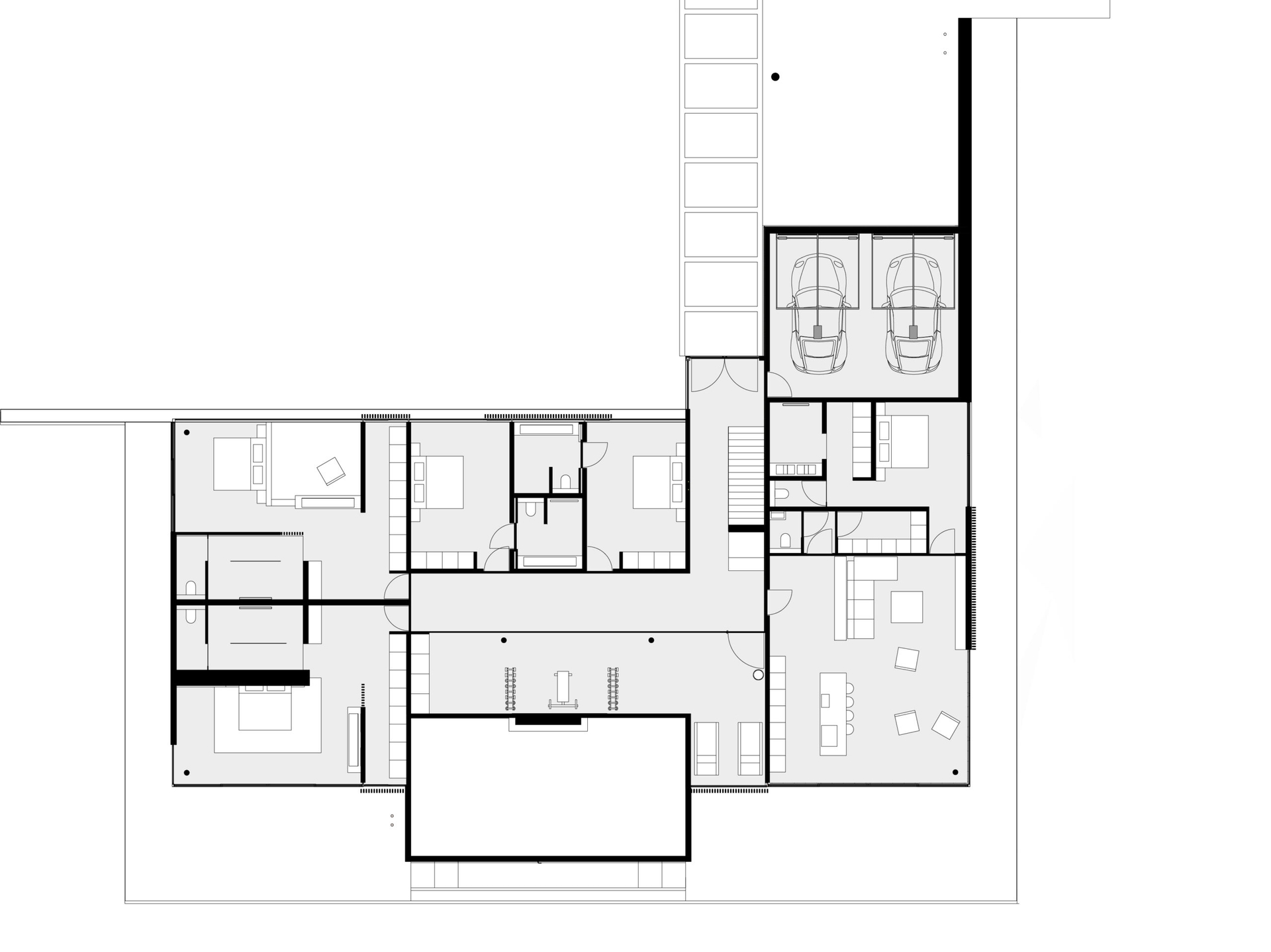
Horizon House is a modern villa where architecture and nature converge. Located in Coral Estate, the design offers a subtle yet powerful response to the surrounding landscape, with a strong focus on serenity, space, and sweeping views. Spanning over 1200 square meters, the villa unfolds through a composition of horizontal lines and open volumes that echo the natural contours of the terrain. Every element is thoughtfully placed to enhance the connection between interior and exterior, creating a living experience that feels grounded, spacious, and effortlessly in tune with its environment.






DESIGNED TO GUIDE THE VIEW
Horizon House, nestled in the natural expanse of Coral Estate, seamlessly integrates into its surroundings. Using horizontal lines to form a symmetrical composition, the design splits into two wings, demarcated by a contrasting pool and central section. Natural yet raw materials create a striking contrast, guiding focus towards panoramic views. The exterior connects intimately with the interior, featuring elements like a palm penetrating the roof and integrated planters. Inside, a modern, minimalist interpretation of tropical aesthetics emerges, characterized by defined sightlines, dark wood finishes and recurring eucalyptus wooden niches for vertical emphasis.

Used materials
Only theessential
Contrasting materials and textures come together to shape an exclusive villa concept. Natural elements such as concrete, wooden panels, and black stucco blend seamlessly, creating a unique architectural expression that harmonizes with the Caribbean landscape.
The expansive black-framed doors and windows enhance the sense of openness, effortlessly connecting indoor and outdoor living spaces to embrace the breathtaking surroundings.



GET IN TOUCH
WITH US
GET IN TOUCH WITH US
We love to collaborate with
ambitious clients. Let’s connect
hello@stateofarchitecture.com















